Características
Acoplados de cualquier superficie, tanto en planta baja como en primera, con las especificaciones requeridas a nivel oficinas, aulas, centros de ocio, comedores, vestuarios, etc., hacen que sus usuarios dispongan de todos los servicios requeridos con la mayores ventajas.
- Módulo aislado con cerramiento de panel sandwich.
- Estructura autoportante.
- Cubierta metálica con aislamiento térmico.
- Falso techo de lamas.
- Suelo formado por chapa lisa.
- Tablero hidrófugo y continuo de vinilo.
- Ventanas correderas de aluminio.
- Instalación eléctrica con cuadro independiente de protección, elementos de mando, fuerza y luminarias con difusor.
- Adosable y apilable.
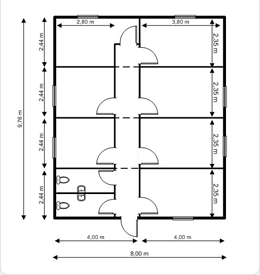
Modelo H600
| Modelo | Medidas |
|---|---|
| A medida | |
• Disponemos de todo tipo de mobiliario para su caseta: mesas, sillas, taquillas...




